-
-
-
Tổng tiền thanh toán:
-
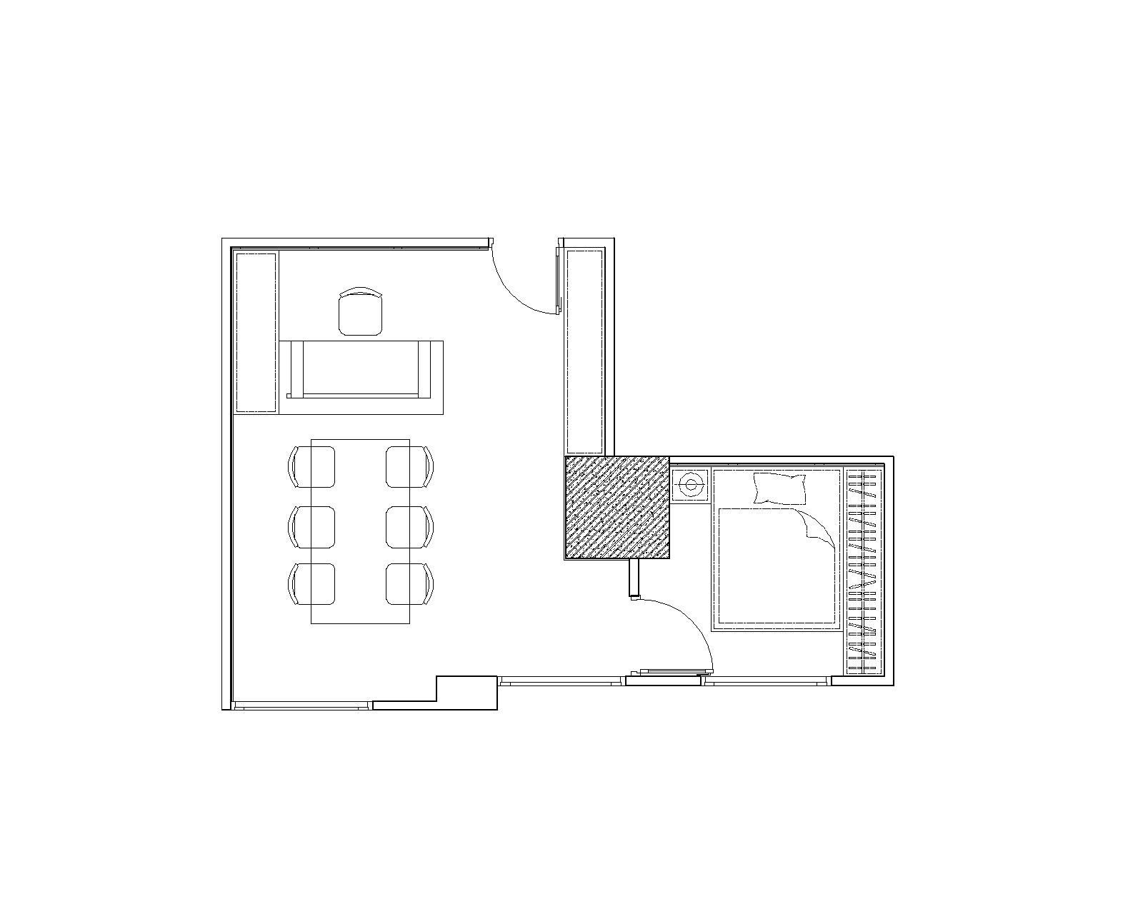
Nếu bạn đang phân vân khi xây dựng và lựa chọn thiết kế nội thất cho một căn nhà vừa tích hợp phòng ngủ và phòng làm việc họp hành thì sau đây sẽ là một gợi ý vô cùng tốt cho bạn đó. MB Home chuyên cung cấp các dịch vụ thiết kế, thi công chung cư, biệt thự, văn phòng,..Dành cho rất nhiều loại hình khác nữa. Chúng tôi luôn sáng tạo, cẩn thận và tỉ mỉ chỉnh chu từ các giai đoạn công việc đơn giản và dễ dàng nhất. Đối với mọi nhu cầu của khách hàng, MB Home luôn đáp ứng và thực hiện tốt nhất có thể. Trước tiên chúng ta hãy cùng nhau khám phá căn nhà kết hợp phòng họp cùng với nơi nghỉ ngơi vô cùng tiện lợi và ấn tượng này nhé!

Chắc hẳn các bạn cũng biết rằng, các đồ gỗ đều luôn tạo nên sự đẳng cấp và sang trọng quý phái. Chính vì thế để thiết kế căn phòng họp chuyên nghiệp và tinh tế thì chúng tôi đã đồng nhất sử dụng các loại mẫu gỗ màu nâu đậm. Màu nâu sang trọng và tinh tế với những đường viền vân gỗ vô cùng đẹp và tỉ mỉ.

Phòng họp và làm việc được kết hợp chung với nhau trong một không gian hình chữ nhật, với sự kết hợp này sẽ góp phần giúp tiết kiệm được không gian và lối đi lại. Bàn làm việc được xếp đối diện với bàn họp quay ngang để khi ngồi trên vị trí bàn riêng thì giám đốc vẫn dễ dàng nhìn và kiểm soát tình hình mọi người đang họp hay làm việc.

Bàn làm việc và bàn họp đều được sử dụng chất liệu gỗ sồi. Tuy nhiên nhằm giúp gia chủ có thể làm việc thoải mái, chúng tôi lựa chọn chiếc ghế xoay có chung tone màu với mẫu nội thất bàn lớn để tạo nên được sự đồng nhất và hài hòa chung với cả căn phòng. Đồng thời chiếc ghế xoay này đã được lắp lên trên một lớp đệm vô cùng mềm mại và sẽ cảm thấy thoải mái dễ chịu khi sử dụng mẫu sản phẩm này.

Khu vực bên trái cửa ra vào được thiết kế tủ lớn có ngăn đựng sách kèm hệ thống đèn led gắn dọc viền theo từng ô. Tủ được đặt ngay sát vị trí bàn làm việc giúp việc tìm kiếm tài liệu sẽ được tìm thấy dễ dàng và khoa học hơn.

Các bức tường đều được sử dụng và lát lớp gỗ màu nâu đậm vô cùng sang trọng và tao nhã khi những đường vân gỗ được lựa chọn sắp xếp tỉ mỉ và cẩn thận vô cùng. Trong thiết kế này chúng tôi sử dụng thảm đỏ full nền giúp làm tăng sự sang trọng, bề thế. Đặc biệt để tô điểm cho căn phòng, trên mỗi bức tường sẽ được đặt một bức tranh yêu thích của giám đốc trong quá trình thi công thực tế.

Chiếc bàn họp được sử lựa chọn dáng dài vừa phải dành cho số lượng ngồi 6 người, mẫu cũng được sử dụng chất liệu bằng gỗ bền và chắc chắn cùng màu nâu trung bình vô cùng hiện đại và tạo nên vẻ tao nhã cho căn phòng. Các chiếc ghế ngồi được chọn là mẫu chất liệu bằng sắt - nhựa rất tiện lợi, chi phí thấp mà lại dùng bền vô cùng.
Có thể bạn quan tâm:
Căn phòng toát lên vẻ giá trị, sang trọng mang hơi hướng tân cổ điển sang trọng. Đây là nơi nghỉ ngơi của sếp sau những vào giờ nghỉ trưa hay những đêm làm việc khuya nên kích thước giường ngủ gọn gàng phù hợp với nhu cầu sử dụng.

Căn phòng ngủ này có một diện tích khiêm tốn, do vậy mà nơi đây cần được sự sắp xếp tài tình và khéo léo để vừa có thể mang đến cho người dùng không gian rộng, thoải mái không gò bó mà còn phải tạo được sự gần gũi và ấm áp.

Rèm cửa là dạng xếp ly có thể kéo lên xuống tùy mục đích sửa dụng. Kiểu rèm cửa này được ưu tiên sửa dụng trong những không gian vừa và nhỏ nhằm tiết kiệm không gian tối ưu. Có thể nói khung cửa sổ này không chỉ mang lại ánh sáng và bầu không khí trong lành cho người sử dụng mà còn tạo nên một nguồn cảm hứng, nguồn động lực cho một ngày làm việc năng động và tích cực hơn.

Phía bên trên là một bản mô phỏng của nhà thiết kế của MB Home, còn bây giờ chúng ta hãy cùng xem qua các mẫu thực tế mà chúng tôi đang thi công và cải tạo đẹp sang trọng như nào nhé!



MB Home mang mọi điều tốt đẹp nhất đến không gian của bạn! Làm việc chuyên nghiệp, cẩn thận, sáng tạo và có trách nghiệm luôn là các tiêu chí chúng tôi hướng tới. Bởi có thể nói rằng, niềm vui và sự tin tưởng của khách hàng dành cho MB Home là một nguồn động lực vô cùng lớn đối với chung tôi. Nó kích thích và tạo thêm cho chúng tôi sự cố gắng, bền bỉ và sáng tạo không ngừng.
Hãy nhấc máy và gọi cho chúng tôi theo Hotline: 0967.10.7777 - 0915.16.4488 khi bạn có nhu cầu để được phục vụ một cách chuyên nghiệp và tốt nhất!
Xem thêm về MB Home:
LĨNH VỰC HOẠT ĐỘNG CHÍNH CỦA NỘI THẤT MBHOME:
Chúng tôi cam kết 100% chất lượng sản phẩm đạt theo yêu cầu của khách hàng.
NỘI THẤT MBHOME - MANG MAY MẮN, BÌNH AN ĐẾN NGÔI NHÀ CỦA BẠN
Email: mbhome.vn@gmail.com - Website: https://hoanthiennoithattrongoi.com/